



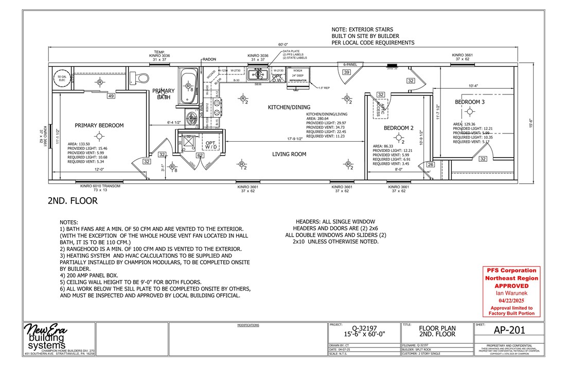
Introducing 7039 Hamilton Avenue. This to-be-built duplex offers a modern investment in urban living. The approved plans include two thoughtfully designed units. Both units feature three bedrooms and one bathroom, providing a cozy yet functional living space, perfect for comfortable living or lucrative rental potential. With all permits finalized, construction can be completed in approximately 120 days, allowing for timely occupancy or rental. The total lot spans 4,329 square feet, offering ample space for outdoor landscaping or additional developments. Seize this chance to invest in a versatile property with promising returns. Contact us for more details on how you can make this project your next successful venture. A full packet of elevations can be sent over upon request. Along with being near Homewood's brand new park, you are close to all the commercial business' in Bakery Square, Point Breeze, Shadyside, and East Liberty among others in Pittsburgh's east end.
| 5 months ago | Listing first seen on site | |
| 5 months ago | Listing updated with changes from the MLS® |